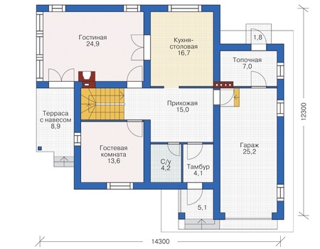
Проект дома 55-47
ПРОЕКТ В ПОДАРОК при заказе строительства дома!
Online расчет стоимости строительства
РАССКАЖЕМ ОБО ВСЕМ В НАШЕМ ШОУ-РУМЕ НА ТУЛЬСКОЙ
![]() |
![]() |
![]() |
![]() |
![]() |
![]() |
Как работает калькулятор стоимости строительства? С 1990 года мы выполнили уже несколько сотен сметных расчетов благодаря чему и смогли разработать онлайн калькулятор стоимости строительства дома из разных технологий, основываясь лишь на общей площади подлежащей строительству. Погрешность составляет не более 5-7%.
Если Вы выбираете генподрядчика и Вам нужна точная смета с подробным описанием комплектации, мы готовы бесплатно выполнить подробный сметный расчет, но уже основанный не на площади, а на реальных объемах используемых материалов от выбранных Вами производителей. Для этого нам необходим либо купленный готовый типовой проект (мы компенсируем Вам его полную стоимость, если строительство дома Вы доверите нам), либо приглашаем Вас к нам в офис с шоу-румом современных технологий строительства для ознакомления и составления бесплатного эскизного проекта с учетом всех Ваших пожеланий и получением 3D-модели будущего дома с посадкой на участок в выбранных Вами конструктивных решениях, на основе которого и будет подготовлен подробный сметный расчет.
* Данное предложение не является публичной офертой согласно ст. 437 ГК РФ. Расчет приблизительный и выполнен на основе двухэтажного дома простой архитектурной формы (пятистенок) без эркеров/фронтонов с вальмовой четырехскатной кровлей, без балконов/терасс/лоджий.
Индивидуальное архитектурное проектирование (раздел АР) выполняется бесплатно при заключении договора-генподряда на строительство дома в стандартной комплектации "теплый контур".









